














Au cœur du Parc du Mercantour, à 1h30 de Nice, Auron est un village offrant le plus grand domaine skiable des Alpes du Sud. La résidence-chalet Aspen Park, nichée sur la colline du Puy d'Auron, bénéficie d'un ensoleillement optimal et d'une vue dégagée. Orienté plein sud.
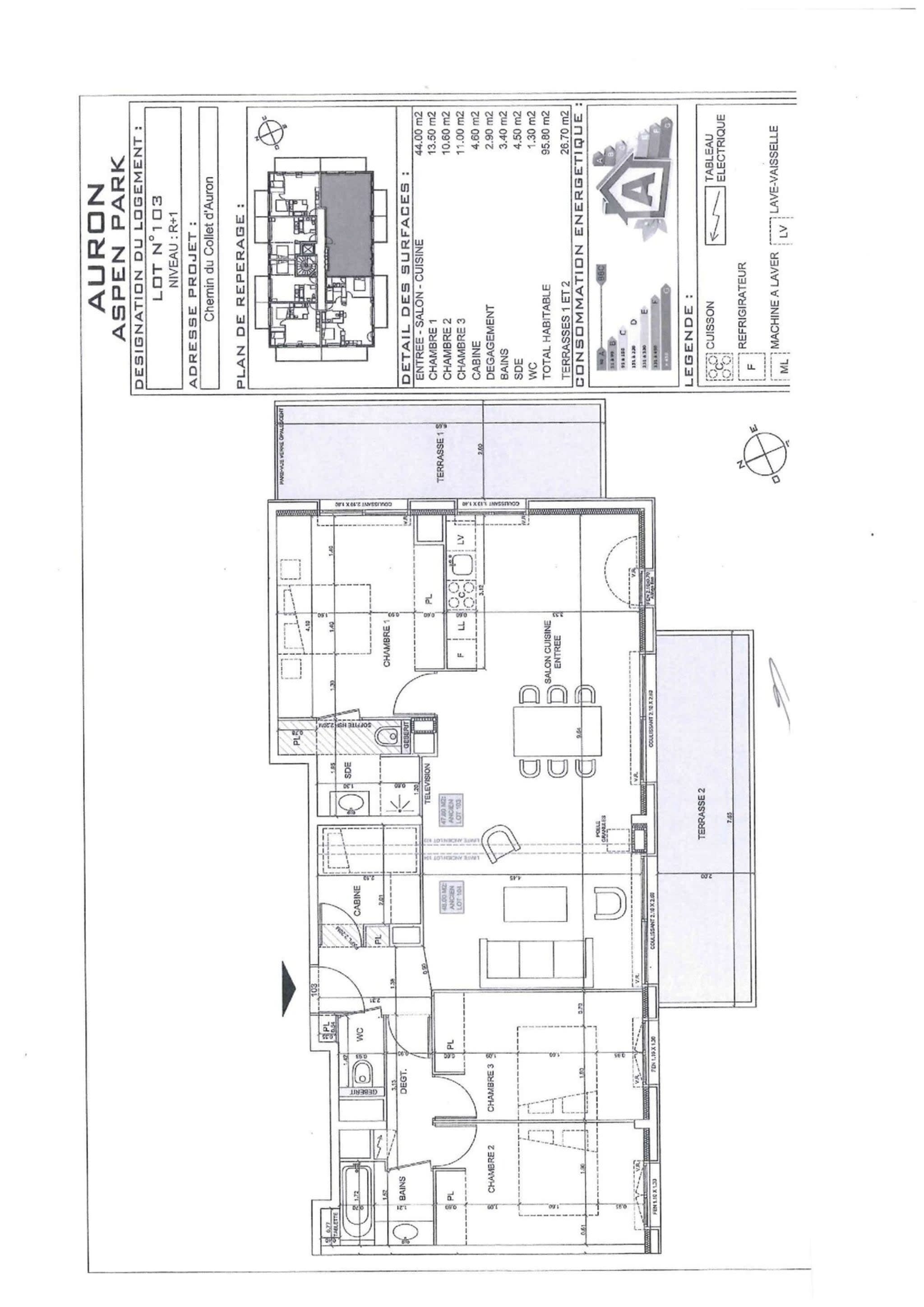
L'appartement de 95.80m² est situé au 1er étage avec ascenseur. Il peut accueillir 6 adultes et 2 enfants.
Séjour ouvert sur la cuisine, donnant sur une belle terrasse. 1 chambre parentale avec terrasse privative et salle d'eau attenante, 2 chambres avec lit 160, 1 espace cabine avec lit superposé pour 2 enfants, 1 salle de bain. 2 places de parking privatives en sous-sol et 1 casier.
Accès des voyageurs
Un service de conciergerie à votre disposition pour vous accueillir et vous guider jusqu'au logement.
À 3 minutes en voiture du centre ou 10-15 minutes à pied. Navette gratuite pour les pistes de ski. Stationnement facile.
Couchages
1 chambre parentale avec salle d'eau, 2 chambres avec lit 160, 1 espace cabine avec lits superposés (2 enfants)
Vue
Vue montagne depuis la terrasse, orienté plein sud
Nos services
Services inclus
- Accueil et conciergerie
- Linge de maison
- Ménage fin de séjour
Services optionnels
- Forfaits de ski
- Location matériel ski
- Livraison de courses
Équipements
Calendrier des disponibilités
Chargement des disponibilités...